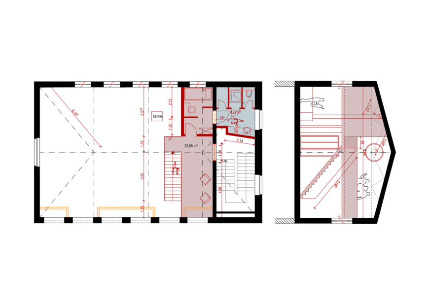
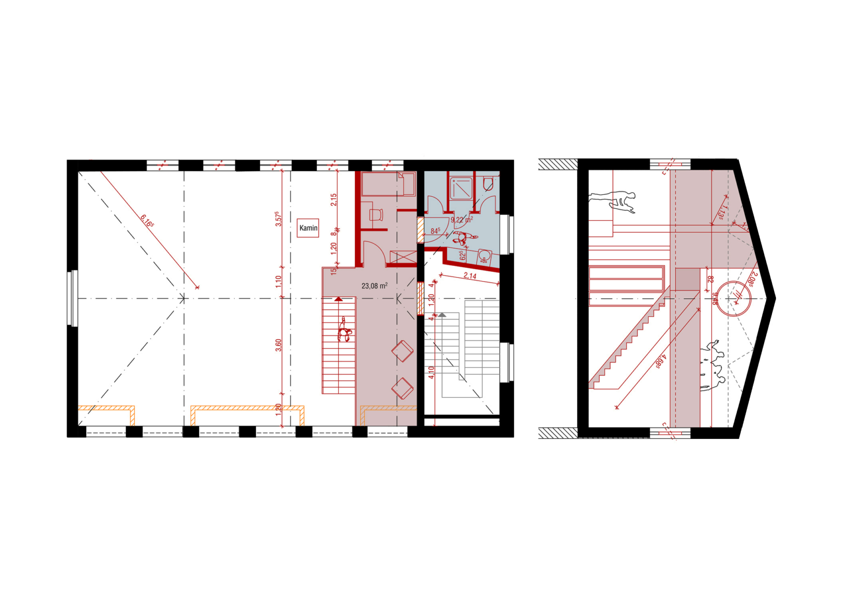
Trafo_Officina

Titel Das Trafo Haus/Officina Ost
Ort Leipzig
Zeit 2024-2025
Auftraggeber Privat
mit Alexandra Feder, federarchitektur
Fotos
Lilly M. Bozzo-Costa, Alexandra Feder